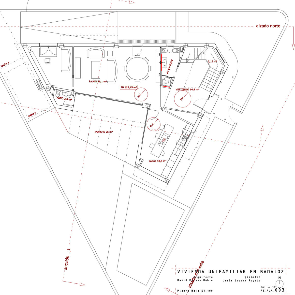
La vivienda es una residencia unifamiliar aislada desarrollada en dos plantas más sótano. La forma triangular de la parcela y la normativa urbanística determinan el volumen perimetral del edificio. La planta sigue una configuración en L con dos lados paralelos a los límites de la propiedad, dejando el tercer lado abierto para el jardín y la zona de piscina.
Ficha Técnica
- Ubicación
- Badajoz, Extremadura
- Año
- 2009-2010
- Tipología
- Vivienda unifamiliar aislada
- Plantas
- Dos plantas + sótano
- Estado
- Ejecutado
Concepto
Salón, cocina, porche y jardín definen un espacio común tan solo diferenciado por los pavimentos. Las superficies acristaladas facilitan la continuidad visual entre los espacios interiores y exteriores, creando una zona de umbral ambigua que se convierte en el corazón de la vivienda.
La configuración en L permite generar un espacio exterior protegido que funciona como extensión natural de las zonas de estar, maximizando la relación entre arquitectura y paisaje.
Galería del Proyecto
Vista exterior de la vivienda. Los volúmenes blancos se recortan contra el cielo extremeño.
Detalle de fachada. La composición volumétrica responde a la geometría triangular de la parcela.
Interior de la vivienda. Espacios diáfanos conectados visualmente con el exterior.
Salón principal. La carpintería de gran formato difumina los límites entre interior y exterior.
Cocina y porche. Salón, cocina, porche y jardín forman un espacio común diferenciado por pavimentos.
Jardín y piscina. El tercer lado de la L se abre al espacio exterior con zona de baño.
Planta baja. Distribución en L adaptada a la geometría triangular de la parcela.
Planta primera. Zona de dormitorios con vistas al jardín.
Secciones. Relación entre los espacios interiores y el jardín en diferentes niveles.